Loading...

ZW32-12系列一二次融合柱上真空断路器


一、产品简述:


  ZW32-12型户外柱上真空断路器是我公司响应国网一二次融合成套柱上开关入网新要求而开发的新一代产品,开关配置完全符合国网一二次融合成套要求,便于国网统一采购,批量化生产。开关结构紧凑,布局合理,功能齐全,各项指标均符合国网一二次融合要求;采用统一参数的保护CT、零序CT和零序电压传感器,具有测量范围宽,测量精度高,可靠性高的特点,模拟量齐全便于到准确判定线路各种故障。

  ZW32-12开关本体为支柱式,采用固体密封真空灭弧室,硅橡胶包封(作为绝缘及缓冲),体积小,封装在环氧树脂绝缘筒内,抗凝露性能优良,工作寿命长,性能可靠。其弹簧操动机构进行了小型化及性能优化设计,动作可靠性远高于国内传统的弹簧机构。符合环保要求:无油和SF6气体,防污等级高,美观,轻便,易于运输。外置1组EVT、ECT(三相电压、电流,零序电压、电流,用于测量,计量,保护)。


二、执行标准:


GB/T1984-2014《高压交流断路器》
GB/T11022-2011《高压开关设备和控制设备标准的共用技术要求》
GB20840.1-2010《互感器第1部分:通用技术要求》
GB20840.2-2014《互感器第2部分:电流互感器的补充技术要求》
GB/T11022-1999《高压开关设备和控制设备标准的共用技术要求》
GB311.2-2002《高压输变电设备的绝缘配合使用导则》
GB/T4109-2008《交流电压高于1000V的绝缘套管》
GB2706《交流高压电器动、热稳定试验方法》
GB3309-1989《高压开关设备在常温下的机械试验》
GB/T8905-1996《六氟化硫电气设备中气体管理和检测导则》
GB1208-2006《电流互感器》
GB/T17626-4-1998《电磁兼容试验和测量技术,电快速瞬变脉冲群抗扰度试》

三、使用条件:


正常使用条件:
a.周围空气温度:-40℃~+80℃; 
b.海拔高度:不超过3000m;
c.周围空气可以受到尘埃、烟、腐蚀性气体、蒸汽或盐雾的污染,污秽等级:Ⅳ级;
d.风速不超过34m/s(相当于圆柱表面上的700Pa);
e.来自开关设备和控制设备外部的振动或地动是可以忽略的;
f.在二次系统中感应的电磁干扰的幅值不超过1.10kV。

四、主要技术参数如下:


表1电气技术参数

项目

参数

额定电压

12kV

额定频率

50Hz

额定电流

630A

额定短时耐受电流

20kA

额定短时耐受电流通流时间

4s

额定短时耐受电流(峰值)

20kA

额定短路关合电流(峰值)

63kA

额定电缆充电电流

25A

额定短路开断电流

20kA

额定操作顺序

分-0.3s-合分-180s-合分

断口绝缘水平

工频(干试)

48kV

雷电冲击试验电压(峰值)

85kV

对地及相间绝缘水平

工频

干式

42kV

湿式

34kV

雷电冲击试验电压(峰值)

75kV

额定机械稳定性次数

断路器

10000次(M2级)

额定合/分闸操作电压(V)

DC24V

总重量

150kg

外形尺寸(长×宽×高)

合闸时间

20~60ms

分闸时间

18~45ms

合闸不同期(ms)

≤2

分闸不同期(ms)

≤2

合闸平均速度(m/s)

0.4~0.8

分闸平均速度(m/s)

0.8~1.2

触头开距(mm)

9±1

触头超行程(mm)

2±0.5

触头合闸弹跳时间(ms)

≤2

储能电机功率不大于40W,储能和操作电压DC24V,便于加装后备电源。


五、结构特点:


1、断路器本体
断路器由真空灭弧室、操动机构及支撑部件等组成,采用了三相支柱式的全封闭结构。
2、操作机构及工作原理
1)断路器可采用电动操作机构。
2)工作原理
断路器由操作机构操纵,带动输出拐臂及三相传动杆,使开关合闸。断路器合闸后,拉动手动分闸拉环或给分闸线圈施加电压,传动杆在分闸弹簧的带动下,使断路器分闸。
开关在运行中,当线路电流超过设定值时,过流线圈动作,使分闸半轴转动,使断路器分闸,从而达到保护线路及设备的作用。
3配套的航空插座:
开关本体单元配置1只37芯航空插座。

1

CN-

储能-

14

27

2

CN+

储能+

15

QY

低气压闭锁

28

3

HZ-

合闸输出-

16

QYCOM

低气压闭锁

29

4

HZ+

合闸输出+

17

30

5

FZ-

分闸输出-

18

31

6

FZ+

分闸输出+

19

YXCOM

遥信公共端

32

7

Ia

A相电流

20

HW

合位

33

8

Ib

B相电流

21

FW

分位

34

9

Ic

C相电流

22

WCN

未储能位

35

10

In

相电流公共

23

36

11

I0

零序电流

24

37

12

I0com

零序电流公共

25

UO+

零序电压+


13



26

UO-

零序电压-




YD41系列航空接插件产品规格书

1、产品主要性能指标:


工作温度:-40℃~100℃
相对湿度:95%(25℃时)
密封性:IP67(配合适电缆接线后)
插座气密性:0.2MPa气压不漏气,可以按客户要求达到0.3或0.4MPa
振动:10~2000Hz,147m/s2,瞬断≤1us
冲击:490m/s2,瞬断≤1us
机械寿命:1000次
绝缘电阻:常态下2500MΩ
接触电阻:≤2mΩ
额定电压:500V(AC),工频耐压:2500V/1min(AC,50Hz)
额定电流:

接触件直径

Φ2

Φ4

额定电流(A)

20

75


2、型号及含义:



3、接触件数目及排列


4、外形尺寸图



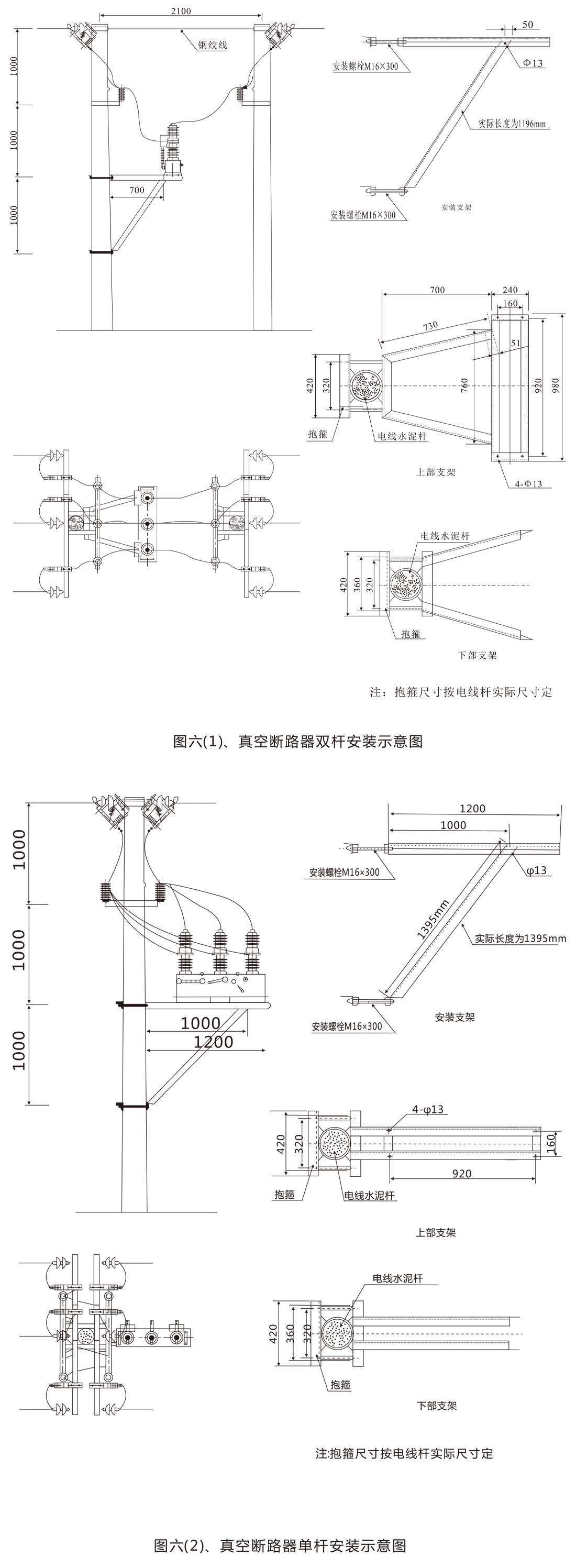
六、真空断路器外形及安装尺寸


七、户外真空断路器安装示意图


八、维护


出厂的产品,已调整到最佳状态,对开关的维护,一般只限于以下情况:
8.1产品运行一定时期后,对开关套管进行清洗:
8.2从出厂时起2年之内,因产品制造质量不合格或漏气,制造厂负责调换或修理(主要在各地维修点或维修中心进行)。

九、运输、验收及保管


9.1运输
本产品必须包装后运输。在运输或吊装时,不允许有强烈震动,不允许倒置、翻滚。
9.2验收
验收应按下列程序进行:
9.2.1在户内开箱,按装箱清单检查随机文件是否齐全:
9.2.2小心取出开关,从外表观察产品是否有碰伤痕迹,特别注意瓷套是否撞裂;
9.2.3观察表压是否在0.35MPa(20℃时)(按用户要求安装压力表时):
9.2.4对开关试操作5次,应无拒合和拒分等现象。
9.2.5有条件时,可检测一下回路电阻值(应小于130μΩ)。
9.3存放
本产品应存放在室内不易被碰撞和通风良好的地方。

十、随机文件

安装使用说明书

一份

合格证

一份

接线原理图

一份

产品出厂检验报告

一份


十一、定货须知


11.1请按所需确定产品的型号、名称、数量、额定电流、操作电源的类别、操作电压等。
11.2根据用户要求可提供:
(a)端子出线或电缆出线;
(b)瓷质套管和有机绝缘子套管;
(c)母线连接的专用夹具;
(d)吊座式安装架。




在线留言

*
*
*

相关产品

查看更多